売物件「建物付土地」詳細

中古住宅徳島市名東2丁目84番3,84番8

管理No 2513
価格 499万円
敷地面積 199.26㎡ (60.27坪)
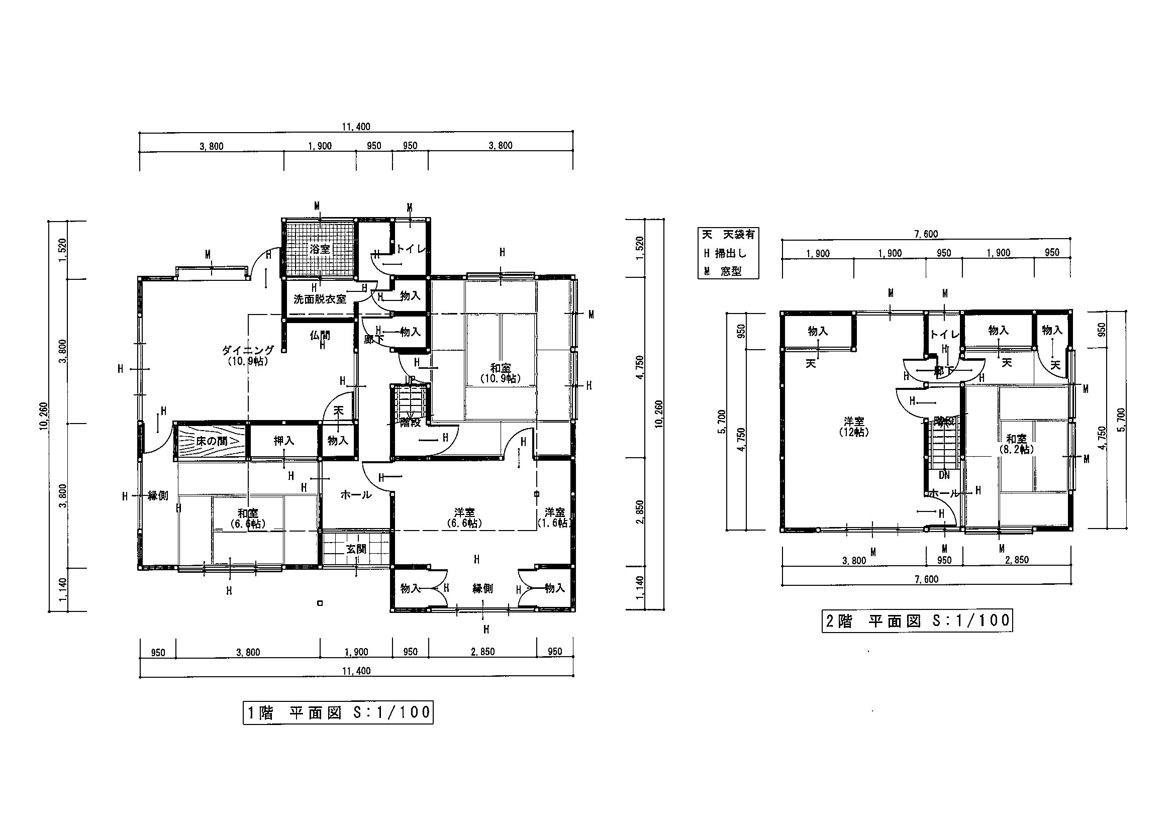
延床面積 100.69㎡ (30.45坪)
各階面積 1階面積:77.51㎡ (23.44坪)
2階面積:23.18㎡ (7.01坪)
構造 木造 スレート葺 2階建て 
間取り 4DK
建築年 昭和48年2月
駐車場 2台
都市計画 第1種中高層住居専用地域
地目 宅地 
建蔽 / 容積率 60% / 200%
現況 空き家
接道 西向き4m幅道路に10m接面
交通 名東2丁目バス停から徒歩5分
学校区 加茂名南小学校
加茂名中学校
取引 仲介
ローンシミュレーション

PR

加茂名南小学校まで徒歩6分(400m)
名東2丁目バス停まで徒歩5分(350m)

詳細は担当/中川までお問い合わせください

この物件へのお問い合わせ

この物件へのお問い合わせは、下記のフォームからか、お電話(088-637-2111)にてお願いいたします。

*は必須項目です。

氏名 *
E-Mail *
郵便番号 *

※記入例:153-0042(半角数字)

ご住所 *
電話番号 *

※記入例:088-123-4567(半角数字)

FAX番号

※記入例:088-123-4567(半角数字) ※お持ちの方

お問い合わせ内容 *
その他連絡方法

メールアドレスの間違い等により返信が出来ない時は、下記の方法でご連絡する場合があります。希望しない項目には必ずチェックして下さい。

Copyright© 2020 morninghome.jp All Rights Reserved.