売物件「建物付土地」詳細

中古住宅吉野川市鴨島町飯尾字辻740-1・739-1

管理No 2482
価格 695万円
敷地面積 146.93㎡ (44.44坪)
延床面積 146.93㎡ (44.44坪)
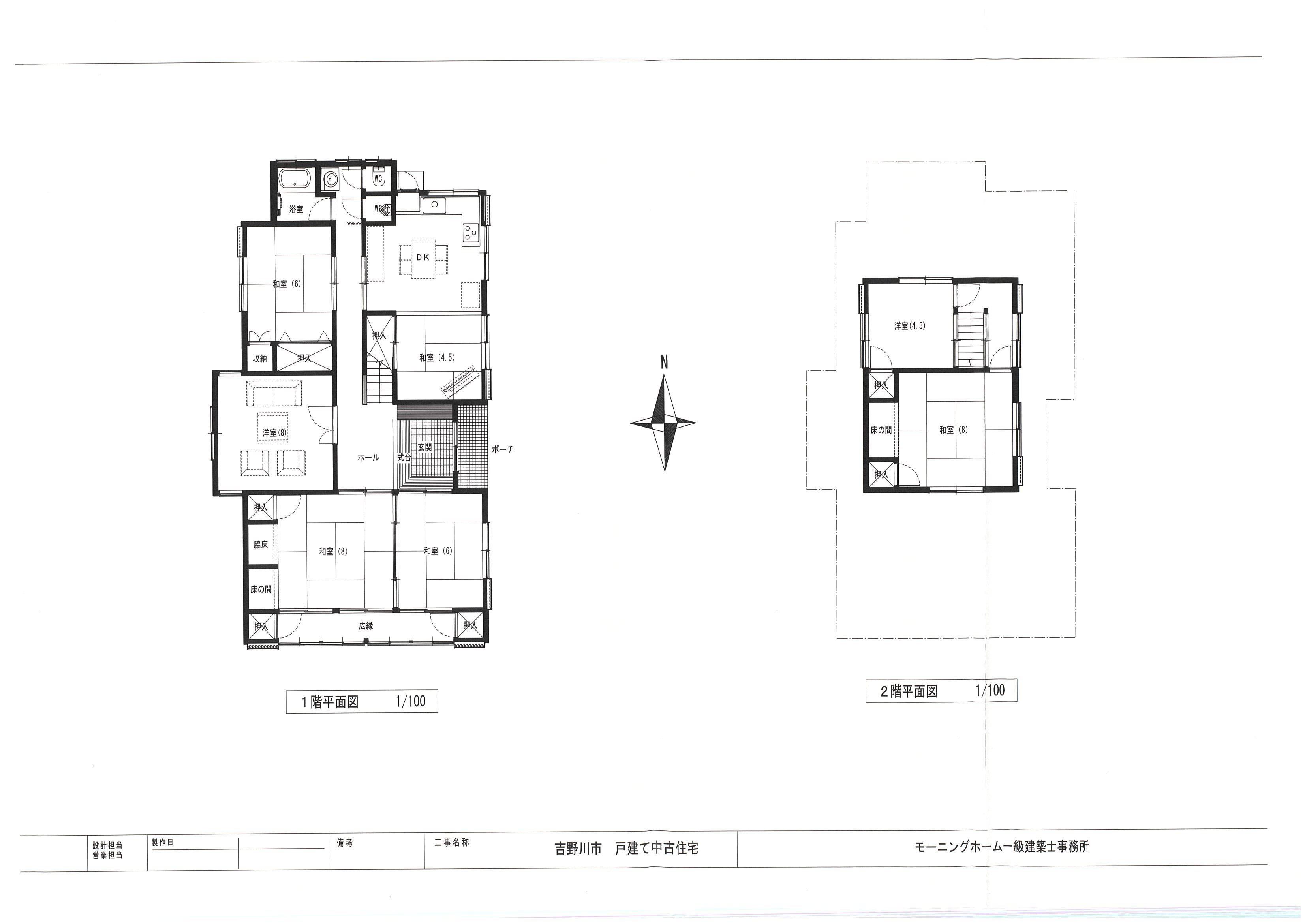
各階面積 1階面積:114.68㎡ (34.69坪)
2階面積:32.25㎡ (9.75坪)
構造 木造 瓦葺 2階建て 
間取り 7DK
建築年 昭和52年9月
駐車場 4台以上
都市計画 第1種住居地域
地目 宅地 畑
建蔽 / 容積率 60% / 200%
現況 空き家
接道 東向き15m幅道路に36m接面
南向き3.4m幅道路に13m接面
交通 鴨島バス停から徒歩12分
JR鴨島駅から徒歩19分
学校区 飯尾敷地小学校
鴨島第一中学校
取引 仲介
ローンシミュレーション

PR

市街化区域の広い一軒家
駐車場あり、庭あり、塀門柱あり

設備
水道:公営
井戸:打ち込み(個別)
電気:四国電力
排水・下水:下水道、側溝、浄化槽

詳細は担当/佐野までお問い合わせください

この物件へのお問い合わせ

この物件へのお問い合わせは、下記のフォームからか、お電話(088-637-2111)にてお願いいたします。

*は必須項目です。

氏名 *
E-Mail *
郵便番号 *

※記入例:153-0042(半角数字)

ご住所 *
電話番号 *

※記入例:088-123-4567(半角数字)

FAX番号

※記入例:088-123-4567(半角数字) ※お持ちの方

お問い合わせ内容 *
その他連絡方法

メールアドレスの間違い等により返信が出来ない時は、下記の方法でご連絡する場合があります。希望しない項目には必ずチェックして下さい。

Copyright© 2020 morninghome.jp All Rights Reserved.