売物件「建物付土地」詳細

中古住宅徳島市北沖洲4丁目136番地9

管理No 2452
価格 880万円
敷地面積 101.39㎡ (30.67坪)
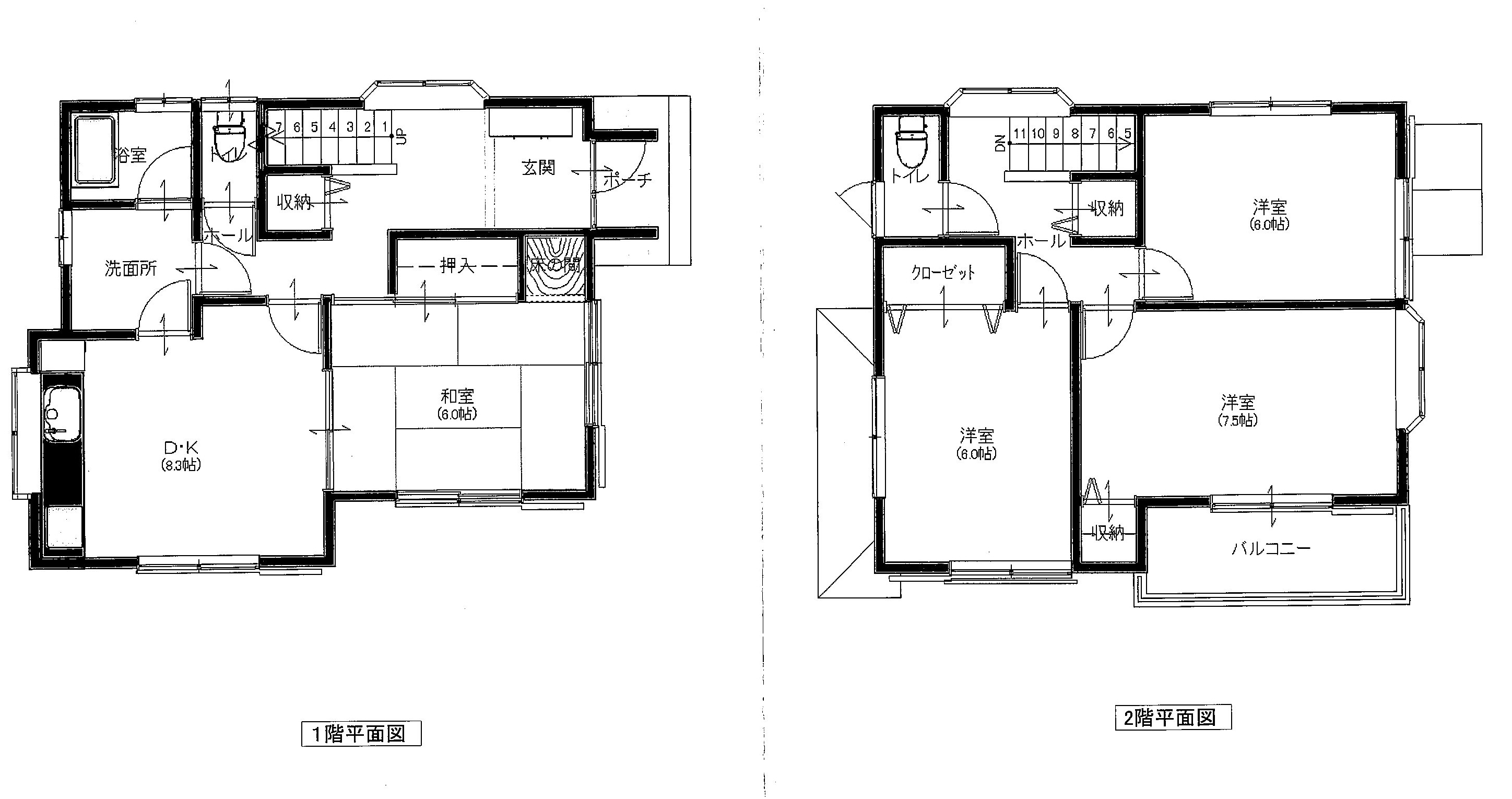
延床面積 95.43㎡ (28.86坪)
各階面積 1階面積:48.50㎡ (14.67坪)
2階面積:46.93㎡ (14.19坪)
構造 木造 スレート葺 2階建て 
間取り 4LDK
建築年 平成5年8月
駐車場 2台
都市計画
地目 宅地 
建蔽 / 容積率 60% / 200%
現況 空き家
接道 東向き4m幅道路に11m接面
交通 中央市場北口バス停から徒歩8分
JR徳島駅から徒歩63分
学校区 沖洲小学校
城東中学校
取引 仲介
ローンシミュレーション

PR

綺麗にメンテナンスされています。
今後も発展する北沖洲エリアの中古住宅 利便性も良好

設備
水道:公営
下水:公共下水
排水:浄化槽(単独)
電気:四国電力
その他:プロパン

詳細は売主までお問い合わせください。

この物件へのお問い合わせ

この物件へのお問い合わせは、下記のフォームからか、お電話(088-637-2111)にてお願いいたします。

*は必須項目です。

氏名 *
E-Mail *
郵便番号 *

※記入例:153-0042(半角数字)

ご住所 *
電話番号 *

※記入例:088-123-4567(半角数字)

FAX番号

※記入例:088-123-4567(半角数字) ※お持ちの方

お問い合わせ内容 *
その他連絡方法

メールアドレスの間違い等により返信が出来ない時は、下記の方法でご連絡する場合があります。希望しない項目には必ずチェックして下さい。

Copyright© 2020 morninghome.jp All Rights Reserved.